Centro e Investigación en Tecnoloxías da Información e das Comunicacións (CITIC), Elviña-A Zapateira
Arquitecto:
Aparelladora:
Equipo:
- (Alumnado da ETSAC mediante convenio COAG-UDC):
- Beatriz G. Pérez-Griffo Ulloa
- Xulio Turnes Vieito
- Marcos Z. Rey García
Promotor:
- Reitoría da UDC
- Vicerreitoría de Infraestruturas e Xestión Ambiental
- Vicerreitoría de Investigación
Fondos:
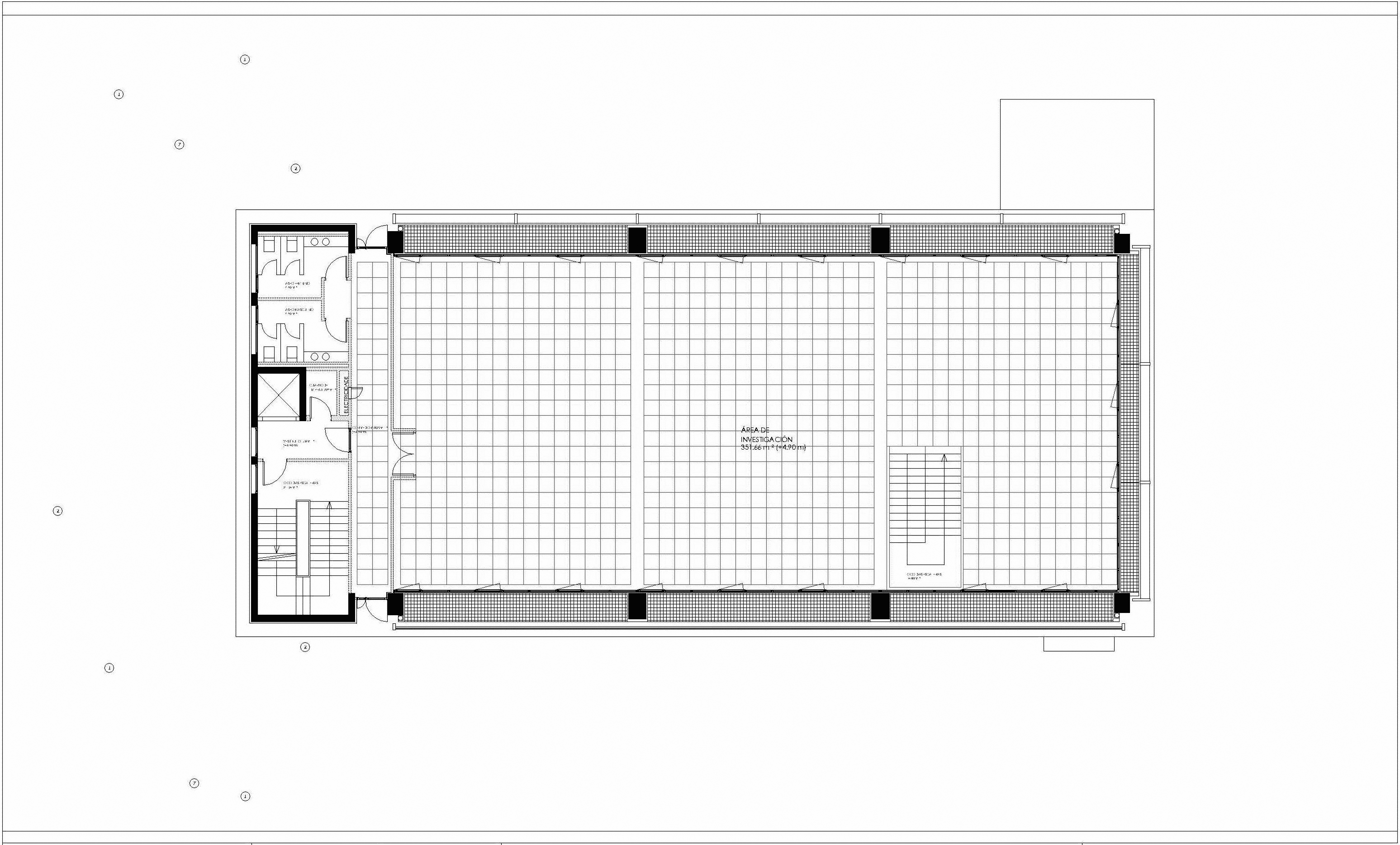
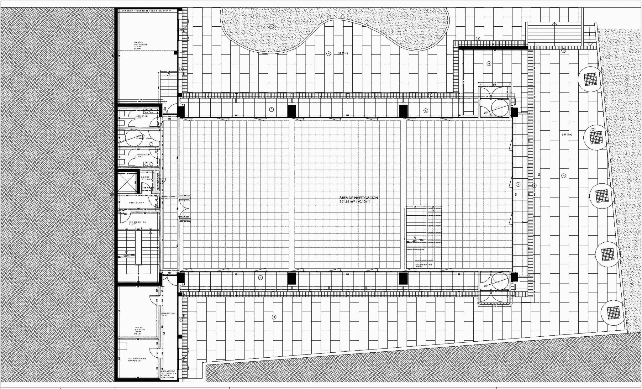
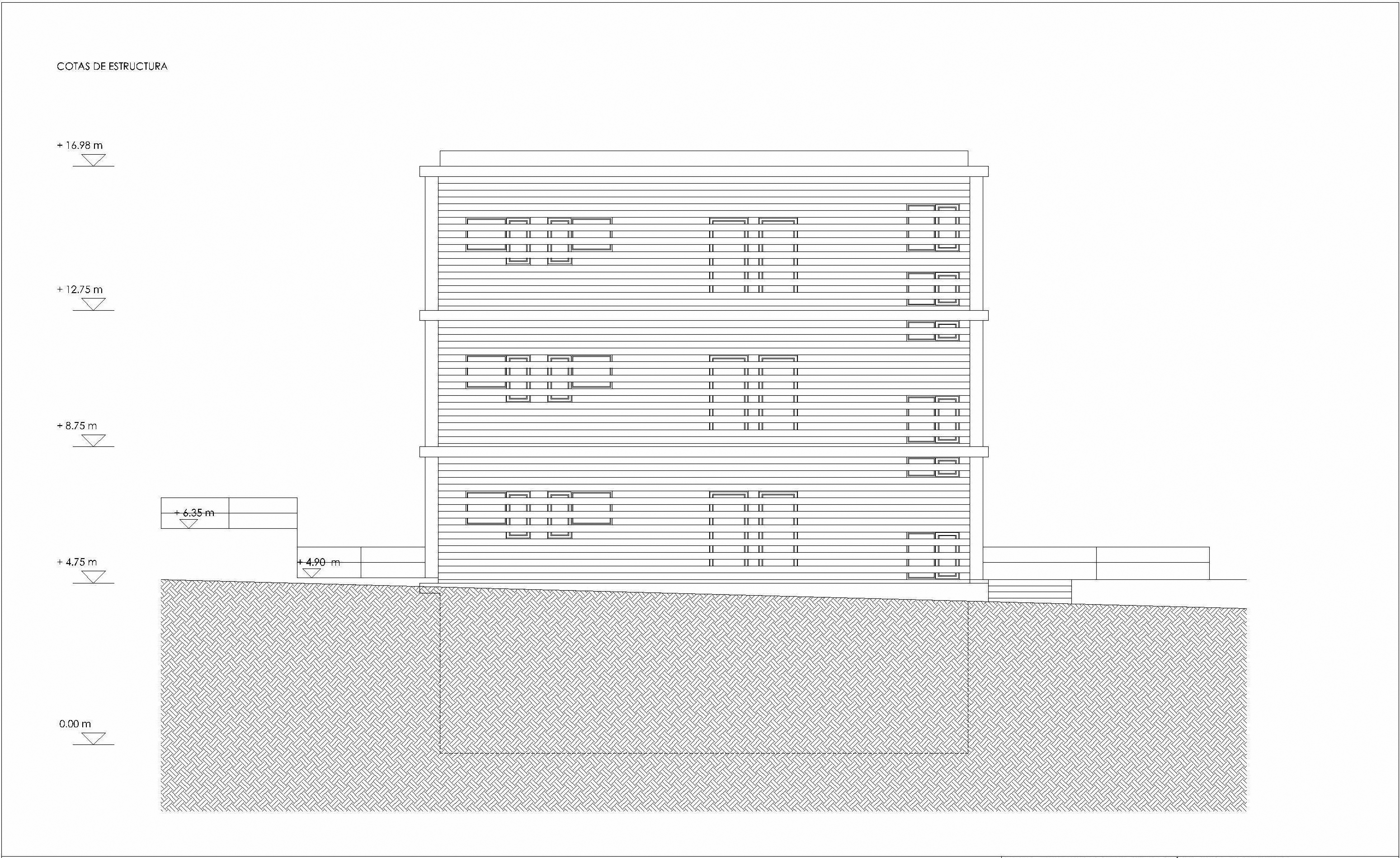
Planos:
Fotos:





