UDC-Universidade da Coruña
Toggle navigation
UDC
Servicio de Arquitectura, Urbanismo y Equipamentos
Servicio de Arquitectura, Urbanismo y Equipamentos
Contacto
Proyectos
Documentos
Arquitectura
Píldoras informativas
Servicio de Arquitectura, Urbanismo y Equipamentos
>>
Contacto
Proyectos
Documentos
Arquitectura
Píldoras informativas
Centro de Documentación e Arquivo(CDA), Elviña-A Zapateira
Arquitectos:
José Manuel Bermúdez Graíño
José Ramón Garitaonaindía de Vera
Aparelladora:
Visitación Mouzo e Souto
Promotor:
Reitoría da UDC
Vicerreitoría de Infraestruturas e Xestión Ambiental
Planos:
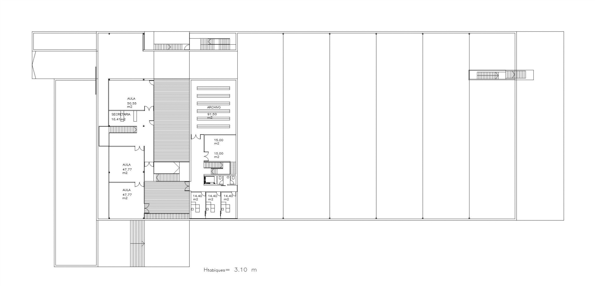
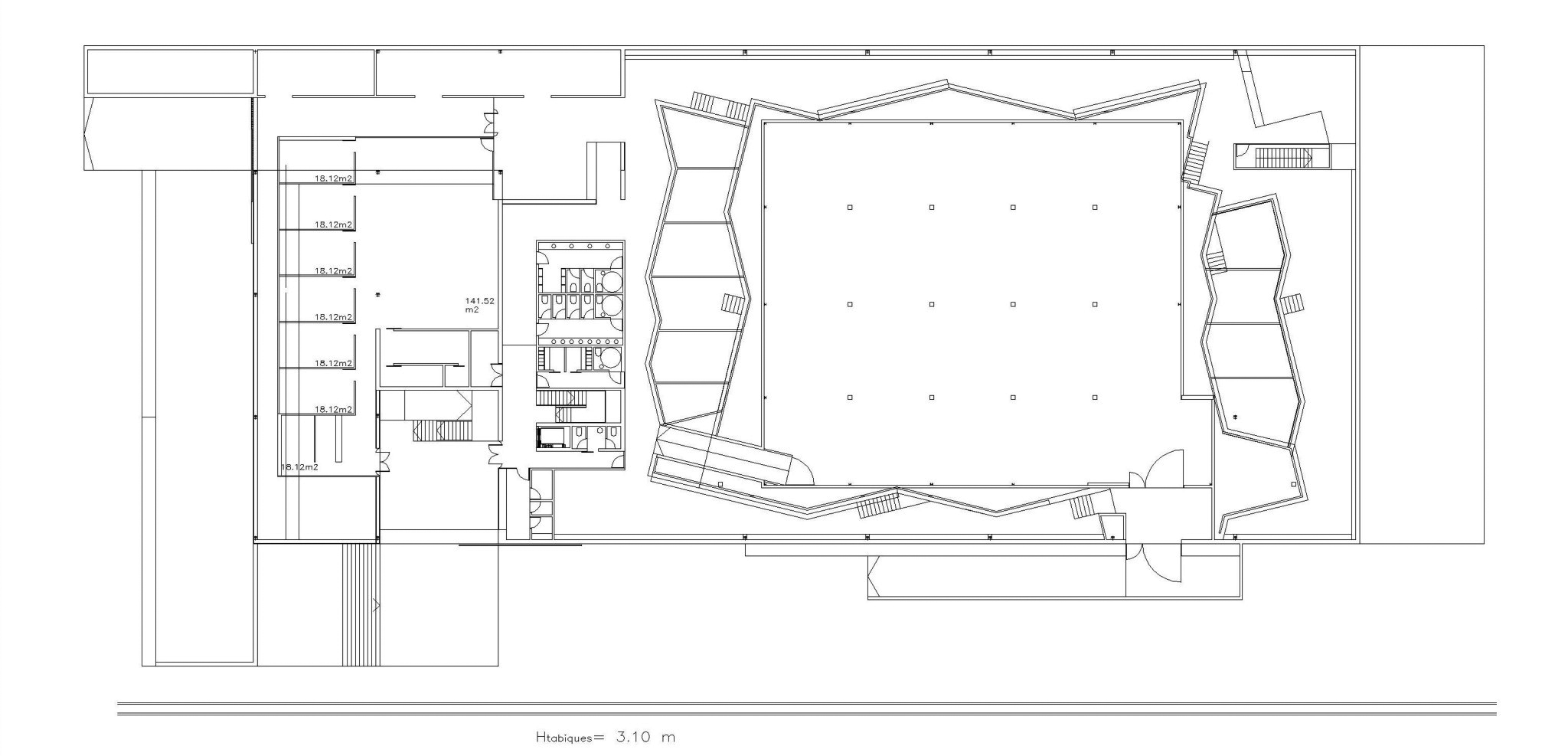
Andar baixo
Andar terceiro
Sección C
Alzado sueste
Andar primeiro
Sección A
Alzado noroeste
Alzado nordeste
Andar segundo
Sección B
Alzado suroeste
Fotos: